NykaLLP - Scafolding & Formwork Banner Image

Cuplock


Specification :-

This system uses pressed steel bottom cups welded at spacing of 500mm or 1000 mm onto the 40 NB steel pipes paired with malleable cast top cups, and a pin welded at the top of these cups which admit ledger blades of the ledgers and lock on to the ledgers when top cup is twisted downwards.

This system is very versatile and is used as access as well as load bearing scaffolds.

Cantilever Bracket
NykaLLP -  Cuplock bracket image

These brackets are versatile and easy to use. They are capable of supporting more than 400 kgs. easily

Cup Lock Standards
Dimension Between The Post (x) 1000 1500 2000 2500 3000
Size (Hollow) Ø48.3
All Demensions are in MM

Cuplock Standards/Verticals are manufactured in various sizes for access and support. All the basic sizes have cups welded at 500mm or 1000mm.

The captive mobile upper Cups are made of Malleable Casting/SG Iron Casting to endure rough site handling and welded bottom cups are pressed from deep drawn steel. The access standards are connected with the upper standards in vertical position with the help of spigots.

NykaLLP - Cuplock vertical Image
Ledgers/horizontals
Dimension Between The Post (x) 1000 1200 1500 1800 2000 2500
Size (Hollow) Ø48.3
All Demensions are in MM

All Ledgers/Horizontals have forged blade welded at the ends with minimum projections to avoid damage. Each component locates itself in the Cup joint on the Standard/Vertical.

Ledgers/Horizontals are available in various sizes to suit customer needs, depending on loading factors in support and wide range access requirements.

NykaLLP - Cuplock Ledger Image

Wedglock


Specification :-

Wedgelock is a modular System Scaffold, with wedge fixing for all access Scaffold requirements. The wedge fixing of the ledgers and transoms gives a simple and fast means of erecting access scaffolding without loose parts.

Rigid 4 way Fixing gives a positive location without movement, spigot and Wedge fitting on the Standard to give guaranteed Vertical alignment.

Dimension Between The Post (x) 1000 1500 2000 3000
Size (Hollow) Ø48.3
All Demensions are in MM
Ledgers/horizontals
NykaLLP - Wedglock Ledgers Horizontals Image

Ledgers are horizontal tubes which connect between the standards. Transoms rest upon the ledgers at right angles. Main transoms are placed next to the standards, they hold the standards in place and provide support for boards; intermediate transoms are those placed between the main transoms to provide extra support for boards

Dimension Between The Post (x) 1000 1250 1500 1800 2500
Size (Hollow) Ø48.3
All Demensions are in MM
Intermediate Transoms
NykaLLP - Wedglock Intermediate Transoms Image

These give additional support to the structure by placing them at different levels horizontally from one ledger to another. Sizes available are same of ledgers. Available in various standard lengths to suit your requirements.

Dimension Between The Post (x) 1000 1250 1500 1800 2500
Size (Hollow) Ø48.3
All Demensions are in MM
Angle Transoms
NykaLLP - Wedglock Angle Transoms Image
Dimension Between The Post (x) 1000 1250 1500 1800 2500
Size (Hollow) 40x40x5
All Demensions are in MM

H-Frame & Props


Specification :-

H-Frames are ideal as scaffolding for wall-plastering and support staging for Centring of high slabs, consists of welded frame of 40 NB Vertical and Horizontal of 40/32 NB pipe. Connected by Cross Bracings made out of angles or pipes. H-Frames are available in 2400, 2000, 1500 mm heights and 1200, 1000, 1800, 900 mm widths.

Props are manufactured from top quality, continuously welded steel tubes, 150 x 150 x 6mm Head and Base plates welded on to inner (40 NB) & Outer (50 NB) members, having matching holes for fastening of props on top of each other to gain additional heights. Center hole is provided to insert stirrup head fitment or U head to hold wooden or steel bearers of slab centering. Nail holes are provided in Head and Foot plates for nailing wooden runners/bearers on to props. Quick and Large adjustments in height can be made by inserting Lock pin into holes provided in the inner member and fine adjustments are made by rotating the malleable iron nut on the outer member.

Couplers & LVL


Forged Right Angle Couplers
NykaLLP - Forged Right Angle Couplers Image

Size : 48mm, 51mm
Min. Slip Load : 12.5 KN
Min Distortion Load : 30 Kn

Forged Swivel Couplers
NykaLLP - Forged Swivel Couplers image

Size : 48mm, 51mm.
Min. Slip Load : 12.5 KN.
Min. Distortion Load : 17 KN

Putlog Couplers
NykaLLP - Putlog Couplers image

Size : 48mm & 51mm.
Min. Slip Load : 12.5 KN
Min. Distortion Load : 2.30 KN

Girder Couplers
NykaLLP -  Girder Couplers image

Size : 48mm.
Min. Slip Load
X axis - 10 KN per pair.
Y axis - 30 KN per pair.
Z axis - 6.5 KN per pair

Sleeve Couplers
NykaLLP - Sleeve Couplers image

Size : 48mm & 51mm.
Min. Slip Load : 6 KN
Min. Distortion Load : 19 KN

Pressed Swivel Couplers
NykaLLP - Pressed Swivel Couplers image

Size : 48mm, 51mm.
Min. Slip Load : 12.5 KN.
Min. Distortion Load : 17 KN

Expansion joint pin
NykaLLP - Expansion joint pin image

Made Out of 5mm flats, used to connect 40NB pipes in horizontal positions.

Toe Board Bracket
NykaLLP - Toe Board Bracket image

It is used to hold toe board brackets in place by coupling itself to the standards.

Rapid Clamp
NykaLLP - Rapid Clamp image

Are versatile, in usage of tie rods being fastened using unthreaded rods also. The wedge when lifted up admits 8mm rods/ tor steel which locks on when the wedge is hammered. The body is nail hammered to the ply form.

Shikanja / Clamp
NykaLLP - Shikanja / Clamp image

Widely Used in Construction to secure timber runners at fixed dimensions.

Jaali
NykaLLP - Jaali image

Scaffolding Jaali is made from mild steel square tubes and is used in all the constructions sites in India

LVL Scaffold Board
NykaLLP - LVL Scaffold Board image

Size - 38 x 225 x 3980 mm
(other sizes also available)
Material - Radiate pine, Glue - WBP Waterproof paint coat at both ends Marking - OSHA proof tested

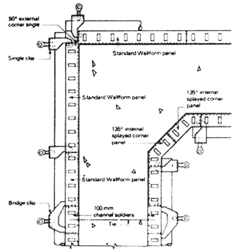
Wall Form


Specification :-

Typical wall form arrangement using, Internal corner angles, External corner angles, Soldiers, Tube clips & 40 NB pipe

Wall Form Component


Wall Form Panel / Decking Panel
NykaLLP - Wall Form Panel / Decking
              Panel image

This is usually tailor made and is used for casting floor slabs, beams and walls. It is easy to assemble and dissemble and also has excellent concrete quality. As it is a large steel panel, the sub material costs can be reduced. This structure functions well and reduces risk of damages and loss of materials. Due to its large steel form , separate lifting tool is required for moving and installing it.

Steel Frame Ply Form
NykaLLP - Steel Frame Ply Form Image

Wallform using plywood embedded inside the steel frame for proper alignment and durability

Steel Walers
NykaLLP - Steel Walers Image

Are useful in holding the form work in place. These are made out of 'C channels held together by welding angles as shown in the diagram the length can be increased by using splice plates.

Adustable Column Clamps
NykaLLP - Adustable Column Clamps Image

Ideally suited for a wide range of column sizes and are usable with both steel and timber shuttering. These clamps have no loose parts. Further interchange ability of arms of different sizes of column clamps makes them extremely versatile.

Range (Minimum meters) Range (Maximum meters)
300 450
765 1070
650 1370

Floor Form


Decking Beams
NykaLLP - Decking Beams Image

It is a supportive part that holds the weight of decking materials that is placed on the deck. The decking beam is supported on both the ends by adjustable props/ standard verticals. These beams are made of 2mm/2.5mm steel sheets bent into a box type and reinforced with lattice, made of steel rods. These come in various

Infill Beams
NykaLLP -infill beam Image

This is a secondary element placed at right angle to decking beams and are supported by it. Ply forms, steel forms are placed on the top to support the concrete poured.

Adustable Telescopic Span
NykaLLP - Adustable Telescopic Span Image

Ideally suited for a wide range of column sizes and are usable with both steel and timber shuttering. These clamps have no loose parts. Further interchange ability of arms of different sizes of column clamps makes them extremely versatile.

Size Range (Minimum meters) Range (Maximum meters)
ESO +ESI 1.75 2.70
SO+ESI 2.40 3.45
SO+SI 2.46 4.15
SO+LI 3.05 4.75
SO+LO - SI 3.15 4.90
LO-L1 3.15 5.50